Multilocale in vendita

Sanremo, Corso G. Garibaldi - Centro
€ 1.300.000
9 locali 9 locali
249 Mq 249 Mq
3 bagni 3 bagni

Multilocale in vendita

Sanremo, Corso G. Garibaldi - Centro

Descrizione annuncio

Sanremo (IM) – Dimora storica di pregio nel cuore della città, immersa nella quiete di un antico parco

Nel cuore di Sanremo, situato in Corso Garibaldi, sorge un elegante edificio di fine Ottocento, un tempo rinomato Hotel de Nice, che accolse tra i suoi ospiti membri illustri dell’aristocrazia europea, inclusi esponenti della famiglia degli Zar. All’epoca, la residenza era circondata da un parco lussureggiante: oggi, lo stesso parco privato custodisce ancora la quiete e il fascino di un tempo, offrendo un’oasi di tranquillità nel pieno centro cittadino.

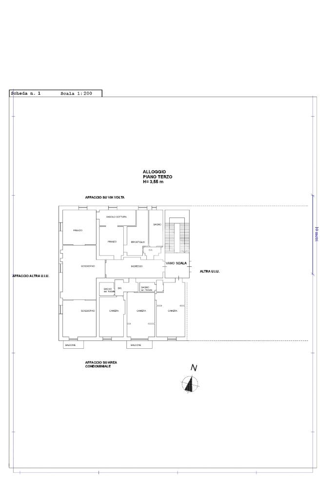
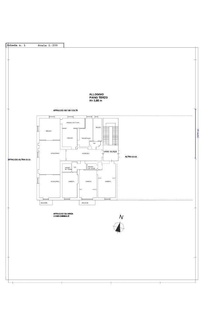
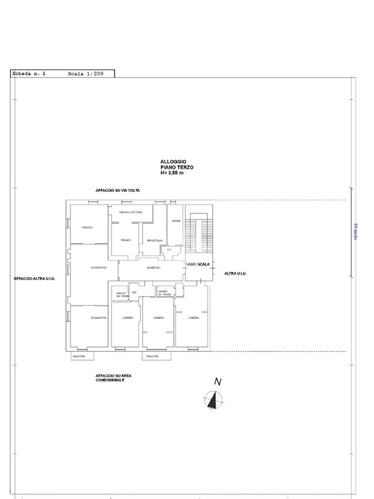
All’interno di questo contesto unico, è in vendita un prestigioso appartamento di ampia metratura (249 mq complessivi), caratterizzato da ambienti luminosi, alti soffitti e un’eleganza d’altri tempi, sapientemente coniugata al comfort contemporaneo.

L’abitazione principale si apre su un ampio ingresso che conduce alle varie stanze della casa. Il cuore della dimora è il soggiorno doppio, dotato di balcone e con annessa sala da pranzo, impreziosito da una tripla esposizione (Nord/Ovest/Sud) che assicura luce naturale durante tutto l’arco della giornata e una piacevole sensazione di spaziosità e respiro.

La zona notte comprende due camere da letto, una delle quali con balcone, e due bagni, di cui uno recentemente ristrutturato, mentre la zona pranzo secondaria con angolo cottura e il grande ripostiglio completano la funzionalità e la comodità della casa.

Adiacente all’appartamento principale è incluso nel prezzo un monolocale indipendente, completamente ristrutturato e dotato di angolo cottura, zona notte e bagno: una soluzione ideale come dependance, studio privato o alloggio per ospiti. Sia il grande appartamento sia il monolocale dispongono di impianto di climatizzazione caldo/freddo tramite split, mentre l’appartamento principale è anche servito dal riscaldamento autonomo a gas di città.

Un’abitazione di rara bellezza e valore storico, dove la quieta eleganza del passato incontra la comodità del centro: una residenza unica, perfetta per chi desidera vivere Sanremo con stile, riservatezza e prestigio.

Mostra tutto

Nelle vicinanze

Trasporto pubblico Trasporto pubblico
Corso Garibaldi 2
Corso Garibaldi 2
100 m
Corso Garibaldi 1
Corso Garibaldi 1
190 m
Sanremo
Sanremo
730 m
Ricariche auto elettriche Ricariche auto elettriche
SIPROTEC / SANREMO 3
110 m
SIPROTEC / SANREMO 1
600 m
Le Terrazze Appartamenti Vacanze | e-Station
2,0 Km
Scuole Scuole
Scuole
80 m
Villa Vigo
330 m
Istituto C. Colombo
470 m
Mater Misericordiae School
560 m
Scuole Medie Giovanni Pascoli
700 m
Farmacia Farmacia
Farmacia Andreoli
180 m
Farmacia Gismondi
300 m
Antica Farmacia Panizzi
380 m
Farmacia Cassanello
410 m
Farmacia Salus
480 m
Ospedali Ospedali
Pronto Soccorso Ospedale Civile Sanremo
320 m
Ospedale Civile Sanremo
370 m
Residenza per Anziani Villa Speranza
690 m
Supermercati Supermercati
Carrefour
90 m
san remo bio
180 m
Basko
240 m
EuroSpin
310 m
Euro Spin
380 m
Negozi Negozi
Da Pietro e Mary
120 m
Negozi
130 m
goldenpoint
300 m
Paul & Shark
320 m
Please
330 m
Bar Bar
Il Panino
340 m
Panorama
440 m
Pico Centrale
560 m
Snack Bar Flavio
570 m
La Rotunda
590 m
Ristoranti Ristoranti
Ristorante Tony's pizzeria
140 m
Pizza Power (Forno a Legna)
220 m
Il Baretto
270 m
La Tavernetta
300 m
Pinocchio
310 m
Mostra tutto

Caratteristiche

Rif.:
61134739
Piano:
3 di 4 con ascensore (Piano medio)
Balconi:
2
Camere da letto:
3
Arredamento:
Parziale
Condizionamento:
Autonomo
Mostra tutto
Prezzo Prezzo
€ 1.300.000
Rata mutuo Rata mutuo
€ 6.136 / mese
Spese annue Spese annue
€ 3.000
Proponi il tuo prezzoProponi il tuo prezzo

Classe Energetica

D
D
D
D
D
D
D
D
D
EP globale non rinnovabile:
92.26 kW h/m² anno
EP globale rinnovabile:
1.63 kW h/m² anno
EP invernale del fabbricato:
EP estiva del fabbricato:
Anno di costruzione:
1870
Riscaldamento:
Autonomo
Tipo impianto:
A radiatori
Tipo alimentazione:
Metano

Ti interessa visionare l'immobile?

Fissa un appuntamento  Fissa un appuntamento

Richiedi informazioni

Clicca su Leggi per aprire l'informativa
* Questi campi sono obbligatori

Calcola il tuo mutuo

Semplice e senza impegno
Anticipo

( % )
Mutuo

( % )

pochi semplici passi

inserisci i tuoi dati
Questionario completato
Grazie per aver richiesto un appuntamento senza impegno con un nostro Consulente del Credito e Assicurativo.

Hai inserito correttamente tutti i dati necessari e a breve riceverai una e-mail con un link da convalidare per inviare i tuoi dati.
Affiliato
Studio San Remo Sas
Via Roma, 191 18038 Sanremo (IM)

Il nostro staff


  • Salvatore Marco Calabrese
    Affiliato

  • Sara Costantini
    Coordinatrice

  • Manuela Dall'Acqua
    Collaboratrice

  • Donatella Mazzone
    Coordinatrice

  • Elia Palesa
    Collaboratore
Via Roma, 191 18038 Sanremo (IM)
Zona: SANREMO - CENTRO - PORTO - COMUNE - OSPEDALE - MERCATO - CENTRO STORICO
Mostra su mappa
Orari: Lunedi-Venerdi 9.00-12.30 / 15.00-19.30 Sabato chiusura ore 19.00 - Domenica su appuntamento.
Affiliato
Studio San Remo Sas
Via Roma, 191 18038 Sanremo (IM)

2025 Tecnocasa Franchising S.p.A. - P. IVA 08365160152 - Via Monte Bianco 60/A 20089 Rozzano (MI). Ogni agenzia ha un proprio titolare ed è autonoma. Privacy policy | Policy utilizzo | Cookie policy