Bilocale in vendita

Sanremo, Corso Nazario Sauro - Centro
€ 272.000
2 locali 2 locali
51 Mq 51 Mq
1 bagno 1 bagno

Bilocale in vendita

Sanremo, Corso Nazario Sauro - Centro

Descrizione annuncio

Tra la rinomata pista ciclabile e le spiagge, nel cuore pulsante di Sanremo, in una delle zone più richieste e comode della città.

Vi proponiamo in vendita questo appartamento che rappresenta la soluzione perfetta per chi desidera vivere il mare ogni giorno, senza rinunciare a tutti i servizi del centro.

La posizione è il vero valore aggiunto: il mare è a pochi passi, così come le passeggiate sul lungomare, le spiagge, la pista ciclabile, i negozi, i ristoranti e ogni comodità raggiungibile comodamente a piedi. Un contesto ideale sia come abitazione principale che come casa vacanze o investimento.

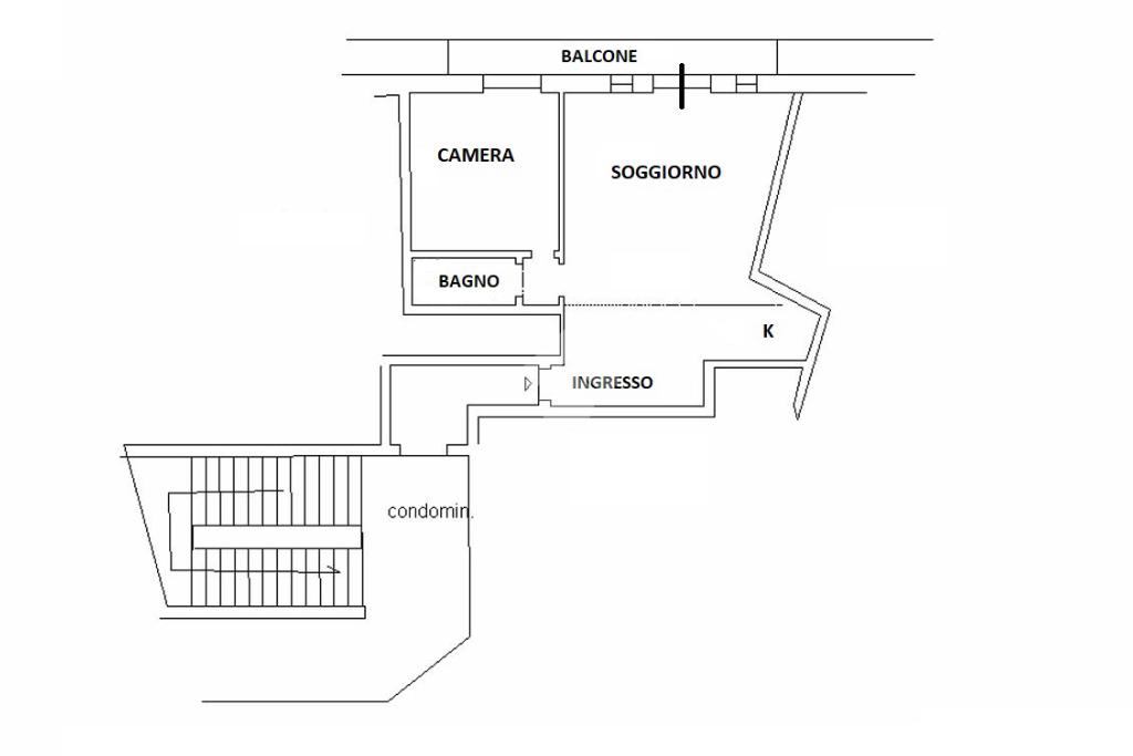
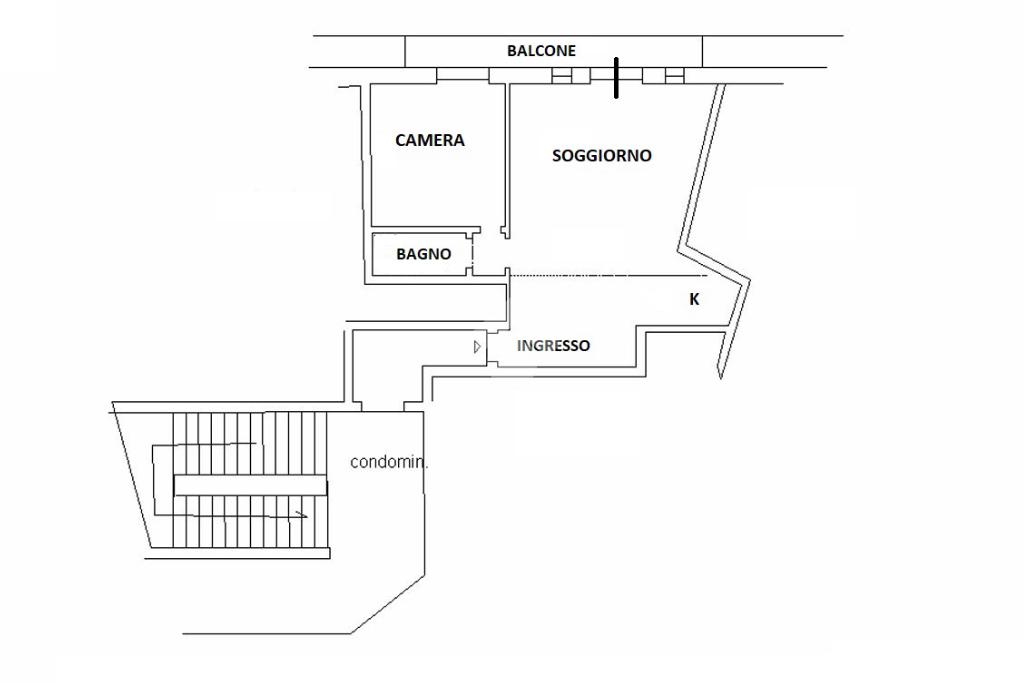
L’ingresso si apre direttamente sulla zona giorno con angolo cottura, uno spazio funzionale e luminoso che conduce all’uscita sul balcone con piacevole vista mare, perfetto per momenti di relax all’aperto. Proseguendo troviamo la camera matrimoniale e il bagno con doccia.

L’appartamento è abitabile, dotato di climatizzatore, e inserito in un condominio in ottimo stato, servito da ascensore.

Una soluzione unica per chi cerca una casa in posizione strategica, centrale e fronte mare, dove vivere Sanremo nel suo massimo splendore.

Mostra tutto

Nelle vicinanze

Trasporto pubblico Trasporto pubblico
Sanremo Autostazione
Sanremo Autostazione
180 m
Via Roma Angolo Via Gaudio
Via Roma Angolo Via Gaudio
190 m
Sanremo
Sanremo
1,1 Km
Ricariche auto elettriche Ricariche auto elettriche
SIPROTEC / SANREMO 3
270 m
SIPROTEC / SANREMO 1
740 m
Le Terrazze Appartamenti Vacanze | e-Station
2,1 Km
Scuole Scuole
Mater Misericordiae School
280 m
Istituto C. Colombo
430 m
Scuole
440 m
Villa Vigo
640 m
Scuole Medie Giovanni Pascoli
800 m
Farmacia Farmacia
Farmacia Andreoli
230 m
Farmacia Cassanello
260 m
Farmacia Gismondi
270 m
Antica Farmacia Panizzi
320 m
Farmacia Salus
330 m
Ospedali Ospedali
Pronto Soccorso Ospedale Civile Sanremo
690 m
Ospedale Civile Sanremo
740 m
Residenza per Anziani Villa Speranza
930 m
Supermercati Supermercati
Conad Permare
100 m
san remo bio
210 m
Basko
350 m
Carrefour
370 m
Dico
410 m
Negozi Negozi
Angel
230 m
Paul & Shark
240 m
Negozi
240 m
goldenpoint
240 m
Dan John
270 m
Bar Bar
Il Panino
310 m
Pico Centrale
370 m
Caffè Charleston
380 m
Living Garden
450 m
American Bar Decò
500 m
Ristoranti Ristoranti
Mini Bar Antonio
20 m
Il Pirata
30 m
da Nico
190 m
Puntob
200 m
Ristorante cinese Pechino
260 m
Mostra tutto

Caratteristiche

Rif.:
61163546
Piano:
4 di 6 con ascensore (Piano alto)
Balconi:
1
Camere da letto:
1
Arredamento:
Completo
Condizionamento:
Autonomo
Mostra tutto
Prezzo Prezzo
€ 272.000
Rata mutuo Rata mutuo
€ 1.270 / mese
Spese annue Spese annue
€ 500
Proponi il tuo prezzoProponi il tuo prezzo

Classe Energetica

C
C
C
C
C
C
C
C
C
EP globale non rinnovabile:
90.44 kW h/m² anno
EP globale rinnovabile:
61.64 kW h/m² anno
EP invernale del fabbricato:
EP estiva del fabbricato:
Anno di costruzione:
1950
Riscaldamento:
Autonomo
Tipo impianto:
A stufa
Tipo alimentazione:
Metano

Ti interessa visionare l'immobile?

Fissa un appuntamento  Fissa un appuntamento

Richiedi informazioni

Clicca su Leggi per aprire l'informativa
* Questi campi sono obbligatori

Calcola il tuo mutuo

Semplice e senza impegno
Anticipo

( % )
Mutuo

( % )

pochi semplici passi

inserisci i tuoi dati
Questionario completato
Grazie per aver richiesto un appuntamento senza impegno con un nostro Consulente del Credito e Assicurativo.

Hai inserito correttamente tutti i dati necessari e a breve riceverai una e-mail con un link da convalidare per inviare i tuoi dati.
Affiliato
Studio San Remo Sas
Via Roma, 191 18038 Sanremo (IM)

Il nostro staff


  • Salvatore Marco Calabrese
    Affiliato

  • Sara Costantini
    Coordinatrice

  • Manuela Dall'Acqua
    Collaboratrice

  • Donatella Mazzone
    Coordinatrice

  • Elia Palesa
    Collaboratore
Via Roma, 191 18038 Sanremo (IM)
Zona: SANREMO - CENTRO - PORTO - COMUNE - OSPEDALE - MERCATO - CENTRO STORICO
Mostra su mappa
Orari: Lunedi-Venerdi 9.00-12.30 / 15.00-19.30 Sabato chiusura ore 19.00 - Domenica su appuntamento.
Affiliato
Studio San Remo Sas
Via Roma, 191 18038 Sanremo (IM)

2026 Tecnocasa Franchising S.p.A. - P. IVA 08365160152 - Via Monte Bianco 60/A 20089 Rozzano (MI). Ogni agenzia ha un proprio titolare ed è autonoma. Privacy policy | Policy utilizzo | Cookie policy