Bilocale in vendita

Sanremo, Via Dante Alighieri - Ospedale
€ 138.000
2 locali 2 locali
40 Mq 40 Mq
1 bagno 1 bagno

Bilocale in vendita

Sanremo, Via Dante Alighieri - Ospedale

Descrizione annuncio

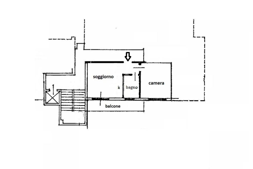
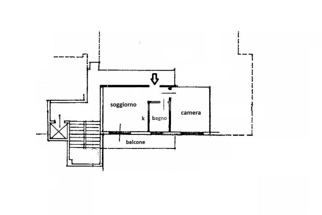
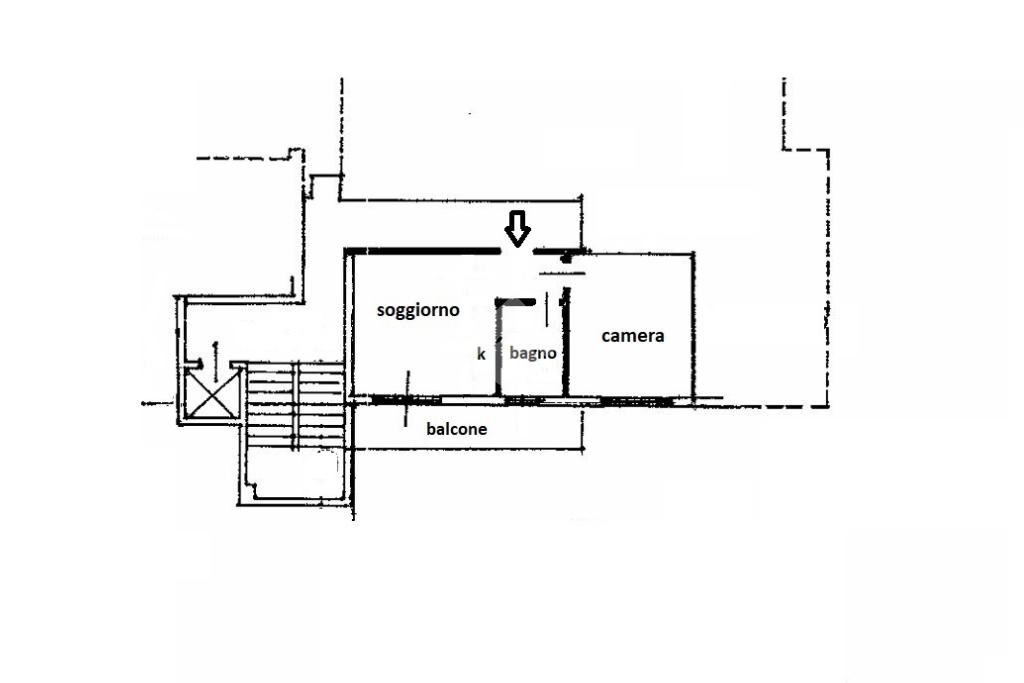
A soli 700 metri dal centro di Sanremo, vi proponiamo questo appartamento situato a all'undicesimo piano servito da ascensore, ideale per chi desidera vivere in una posizione comoda senza rinunciare a luminosità e alla vista mare.

L’ingresso si apre su un pratico disimpegno che conduce alla zona giorno con angolo cottura, uno spazio accogliente e ben distribuito. Da qui si accede al balcone, vero punto di forza dell’abitazione: la vista è ampia e ariosa, spazia dal mare fino ai monti, regalando luce naturale durante tutto l’arco della giornata e un piacevole senso di apertura.

Proseguendo troviamo la camera da letto finestrata, luminosa e ben ventilata, e infine il bagno anch’esso finestrato, completo di doccia.

La casa si presenta abitabile fin da subito ed è dotata di condizionatore, caratteristica che garantisce comfort in ogni stagione.

Una soluzione perfetta come prima casa, punto d’appoggio al mare o investimento, grazie alla combinazione del piano alto, ottima esposizione con vista mare e comodità al centro città.

Mostra tutto

Nelle vicinanze

Trasporto pubblico Trasporto pubblico
Via Pietro Agosti Dì Per Dì Civico 11
Via Pietro Agosti Dì Per Dì Civico 11
600 m
Corso Garibaldi 2
Corso Garibaldi 2
640 m
Sanremo
Sanremo
720 m
Ricariche auto elettriche Ricariche auto elettriche
SIPROTEC / SANREMO 3
640 m
SIPROTEC / SANREMO 1
970 m
Le Terrazze Appartamenti Vacanze | e-Station
2,2 Km
Scuole Scuole
Villa Vigo
230 m
Scuole
490 m
Istituto C. Colombo
700 m
Mater Misericordiae School
970 m
Scuole Medie Giovanni Pascoli
1,1 Km
Farmacia Farmacia
Farmacia Moderna
520 m
Farmacia Calvi
590 m
Farmacia Andreoli
650 m
Farmacia Gismondi
670 m
Antica Farmacia Panizzi
710 m
Ospedali Ospedali
Ospedale Civile Sanremo
290 m
Pronto Soccorso Ospedale Civile Sanremo
350 m
Residenza per Anziani Villa Speranza
900 m
Supermercati Supermercati
Euro Spin
310 m
Tutto Buono
420 m
EuroSpin
440 m
Basko
560 m
Supermercati
580 m
Negozi Negozi
Negozi
420 m
Pan per foccacia
580 m
Da Pietro e Mary
650 m
Please
670 m
Cesar
690 m
Bar Bar
Panorama
380 m
Bar
530 m
Al piccolo ritrovo
560 m
Dadone
570 m
Erica
580 m
Ristoranti Ristoranti
Pizza Power (Forno a Legna)
430 m
Bar trattoria Jolly
440 m
Pinocchio
630 m
Ristorante Tony's pizzeria
650 m
La Tavernetta
650 m
Mostra tutto

Caratteristiche

Rif.:
61183164
Piano:
11 di 12 con ascensore (Piano alto)
Balconi:
1
Camere da letto:
1
Arredamento:
Completo
Condizionamento:
Autonomo
Mostra tutto
Prezzo Prezzo
€ 138.000
Rata mutuo Rata mutuo
€ 644 / mese
Spese annue Spese annue
€ 800
Proponi il tuo prezzoProponi il tuo prezzo

Classe Energetica

F
F
F
F
F
F
F
F
F
EP globale non rinnovabile:
156.02 kW h/m² anno
EP globale rinnovabile:
32.96 kW h/m² anno
EP invernale del fabbricato:
EP estiva del fabbricato:
Anno di costruzione:
1970
Riscaldamento:
Autonomo
Tipo impianto:
Ad aria
Tipo alimentazione:
Aria

Ti interessa visionare l'immobile?

Fissa un appuntamento  Fissa un appuntamento

Richiedi informazioni

Clicca su Leggi per aprire l'informativa
* Questi campi sono obbligatori

Calcola il tuo mutuo

Semplice e senza impegno
Anticipo

( % )
Mutuo

( % )

pochi semplici passi

inserisci i tuoi dati
Questionario completato
Grazie per aver richiesto un appuntamento senza impegno con un nostro Consulente del Credito e Assicurativo.

Hai inserito correttamente tutti i dati necessari e a breve riceverai una e-mail con un link da convalidare per inviare i tuoi dati.
Affiliato
Studio San Remo Sas
Via Roma, 191 18038 Sanremo (IM)

Il nostro staff


  • Salvatore Marco Calabrese
    Affiliato

  • Sara Costantini
    Coordinatrice

  • Manuela Dall'Acqua
    Collaboratrice

  • Donatella Mazzone
    Coordinatrice

  • Elia Palesa
    Collaboratore
Via Roma, 191 18038 Sanremo (IM)
Zona: SANREMO - CENTRO - PORTO - COMUNE - OSPEDALE - MERCATO - CENTRO STORICO
Mostra su mappa
Orari: Lunedi-Venerdi 9.00-12.30 / 15.00-19.30 Sabato chiusura ore 19.00 - Domenica su appuntamento.
Affiliato
Studio San Remo Sas
Via Roma, 191 18038 Sanremo (IM)

2026 Tecnocasa Franchising S.p.A. - P. IVA 08365160152 - Via Monte Bianco 60/A 20089 Rozzano (MI). Ogni agenzia ha un proprio titolare ed è autonoma. Privacy policy | Policy utilizzo | Cookie policy